宿泊について

一棟貸し切り 里山の離れ宿

九谷焼の里として知られる石川県能美市にある一棟貸しのゲストハウスです。自然に囲まれた静かな里山で、お庭を眺めながらゆったりお過ごしください。虚空蔵山へのハイキング、遣水観音山や白山などの登山のベースにもどうぞ。

体験プログラム

静かな里山に囲まれた環境で、遊びや学びを通して豊かな時間を過ごして頂くためのプログラムを開催しています。

  • exterior
    EXTERIOR

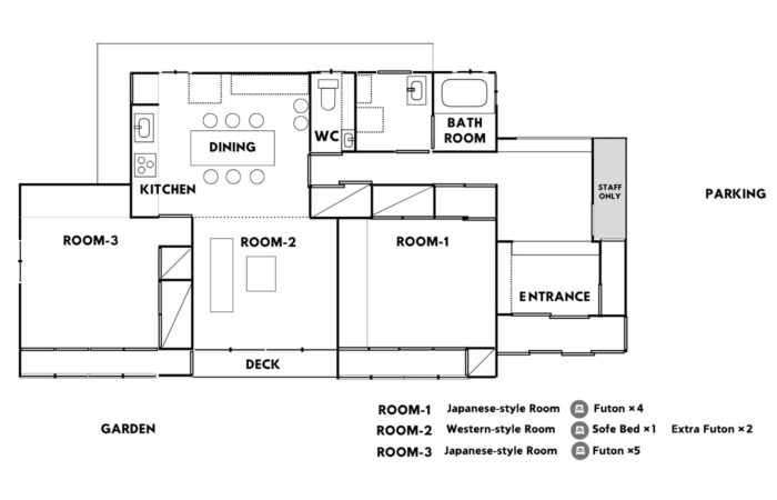
  • 8畳の和室が2部屋あります(4名様用、5名様用)。
  • 洋室が1部屋あり、リビングとしてお使いいただくことができます。ソファベッドが備え付けられていますので寝室としても利用可能です。
  • 合計10名様までお泊まりいただけますが、6名様程度がゆったり使えておすすめです。
  • お風呂は日本の伝統的なスタイルです。檜の良い香りをお楽しみください。
  • どのお部屋からも日本庭園を眺めることができます。
  • トイレは1か所です。ウォシュレットが備え付けられています。
  • エアコンをお使いいただけます。ダイニング、洋室には床暖房もあります。
  • ペットをお連れの場合は別料金が必要です。また、和室(畳のお部屋)にはペットの入室はできません。ダイニング、洋室では自由にお過ごしいただだけます。
  • お食事の提供はありませんが、朝食のみ、スタッフと一緒に作る「朝食づくり体験」プログラムがあります。詳しくはこちら>>
  • BBQは、駐車場またはデッキの前でのみ可能です(20時までに終了してください)。事前にご連絡いただき、炭や食材はご用意ください。BBQ台1台(3〜4名様用)、再利用網、炭用トング、軍手、アウトドア用テーブル、チェア4脚をお貸しできます。使用後は用具を洗い、元の状態に戻してください。※片付けサービスをご希望の場合、別途料金がかかります。
TOP